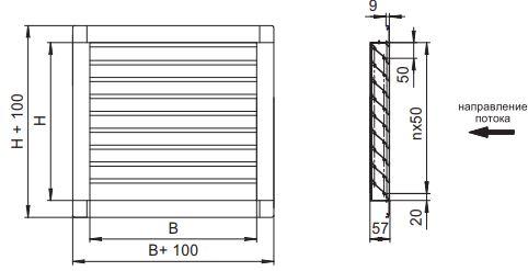
Застосування декоративної решітки OZA-R50
Нерегульовані алюмінієві решітки типу OZA-R50 призначені для зовнішнього декорування місць виходу вентиляційних шахт, повітроводів, отворів при необхідності оформлення фасадної сторони приміщень. Сітки з внутрішньої сторони можуть оснащуватися цільно-просічною сіткою для запобігання попадання в захищену зону сторонніх предметів. Верхня полиця корпусу решіток типу OZA-R50 має так званий "відплив" для захисту від попадання опадів у внутрішню порожнину решітки.

| Н, мм | В, мм | ||||||||||||||
| 600 | 700 | 800 | 900 | 1000 | 1100 | 1200 | 1300 | 1400 | 1500 | 1600 | 1700 | 1800 | 1900 | 2000 | |
| 520 | - | 0.218 | 0,250 | 0,281 | 0,312 | 0,343 | 0,374 | 0,406 | 0,437 | 0,468 | 0,499 | 0,530 | 0,562 | 0,593 | 0,624 |
| 620 | - | 0,260 | 0.298 | 0,335 | 0,372 | 0,409 | 0,446 | 0,484 | 0,521 | 0,558 | 0,595 | 0,632 | 0,670 | 0,707 | 0,744 |
| 720 | - | 0,302 | 0,346 | 0.389 | 0,432 | 0,475 | 0,518 | 0,562 | 0,605 | 0,648 | 0,691 | 0,734 | 0,778 | 0,821 | 0,864 |
| 820 | - | 0,344 | 0,394 | 0,443 | 0.492 | 0,541 | 0,590 | 0,640 | 0,689 | 0,738 | 0,787 | 0,836 | 0,886 | 0,935 | 0,984 |
| 920 | - | 0,386 | 0,442 | 0,497 | 0,552 | 0.607 | 0,662 | 0,718 | 0,773 | 0,828 | 0,883 | 0,938 | 0,994 | 1,049 | 1,104 |
| 1020 | 0,367 | 0,428 | 0,490 | 0,551 | 0,612 | 0,673 | 0.734 | 0,796 | 0,857 | 0,918 | 0,979 | 1,040 | 1,102 | 1,163 | 1,224 |
| 1120 | 0,403 | 0,470 | 0,538 | 0,605 | 0,672 | 0,739 | 0,806 | 0.874 | 0,941 | 1,008 | 1,075 | 1,142 | 1,210 | 1,277 | 1,344 |
| 1220 | 0,439 | 0,512 | 0,586 | 0,659 | 0,732 | 0,805 | 0,878 | 0,952 | 1.025 | 1,098 | 1,171 | 1,244 | 1,318 | 1,391 | 1,464 |
| 1320 | 0,475 | 0,554 | 0,634 | 0,713 | 0,792 | 0,871 | 0,950 | 1,030 | 1,109 | 1.188 | 1,267 | 1,346 | 1,426 | 1,505 | 1,584 |
| 1420 | 0,511 | 0,596 | 0,682 | 0,767 | 0,852 | 0,937 | 1,022 | 1,108 | 1,193 | 1,278 | 1.363 | 1,448 | 1,534 | 1,619 | 1,704 |
| 1520 | 0,547 | 0,638 | 0,730 | 0,821 | 0,912 | 1,003 | 1,094 | 1,186 | 1,277 | 1,368 | 1,459 | 1.550 | 1,642 | 1,733 | 1,824 |
| 1620 | 0,583 | 0,680 | 0,778 | 0,875 | 0,972 | 1,069 | 1,166 | 1,264 | 1,361 | 1,458 | 1,555 | 1,652 | 1.750 | 1,847 | 1,944 |
| 1720 | 0,619 | 0,722 | 0,826 | 0,929 | 1,032 | 1,135 | 1,238 | 1,342 | 1,445 | 1,548 | 1,651 | 1,754 | 1,858 | 1.961 | 2,064 |
| 1820 | 0,655 | 0,764 | 0,874 | 0,983 | 1,092 | 1,201 | 1,310 | 1,420 | 1,529 | 1,638 | 1,747 | 1,856 | 1,966 | 2,075 | 2.184 |
| 1920 | 0,691 | 0,806 | 0,922 | 1,037 | 1,152 | 1,267 | 1,382 | 1,498 | 1,613 | 1,728 | 1,843 | 1,958 | 2,074 | 2,189 | 2,304 |
| 2020 | 0,727 | 0,848 | 0,970 | 1,091 | 1,212 | 1,333 | 1,454 | 1,576 | 1,697 | 1,818 | 1,939 | 2,060 | 2,182 | 2,303 | 2,424 |
| 2120 | 0,763 | 0,890 | 1,018 | 1,145 | 1,272 | 1,399 | 1,526 | 1,654 | 1,781 | 1,908 | 2,035 | 2,162 | 2,290 | 2,417 | 2,544 |
| 2220 | 0,799 | 0,932 | 1,066 | 1,199 | 1,332 | 1,465 | 1,598 | 1,732 | 1,865 | 1,998 | 2,131 | 2,264 | 2,398 | 2,531 | 2,664 |
| 2320 | 0,835 | 0,974 | 1,114 | 1,253 | 1,392 | 1,531 | 1,670 | 1,810 | 1,949 | 2,088 | 2,227 | 2,366 | 2,506 | 2,645 | 2,784 |
| 2420 | 0,871 | 1,016 | 1,162 | 1,307 | 1,452 | 1,597 | 1,742 | 1,888 | 2,033 | 2,178 | 2,323 | 2,468 | 2,614 | 2,759 | 2,904 |
| 2520 | 0,907 | 1,058 | 1,210 | 1,361 | 1,512 | 1,663 | 1,814 | 1,966 | 2,117 | 2,268 | 2,419 | 2,570 | 2,722 | 2,873 | 3,024 |
Характеристики
| Основні | |
|---|---|
| Виробник | ССК ТМ |
| Країна виробник | Україна |
| Матеріал корпусу | Алюміній |
| Тип повітророзподільника по конструкції | Решітка |
Інформація для замовлення
- Ціна: 948 ₴



